As emendas parlamentares são um importante instrumento no financiamento de projetos que buscam melhorar o bem-estar social e garantir os Direitos Humanos. Elas permitem que parlamentares eleitos destinem uma parte do orçamento público para áreas específicas, atendendo demandas de suas regiões ou de toda a sociedade. Quando bem direcionadas e demandadas, essas emendas têm o poder de diminuir desigualdades sociais e garantir o acesso a direitos essenciais, como saúde, educação e infraestrutura.
Além disso, quando aplicadas em projetos voltados à inclusão e ao bem-estar da população, as emendas parlamentares se tornam ferramentas poderosas para transformar a realidade das comunidades. Através de investimentos estratégicos, é possível criar espaços que atendem a diversas necessidades, como acessibilidade, convivência social, educação e lazer, promovendo um ambiente de igualdade e justiça social.
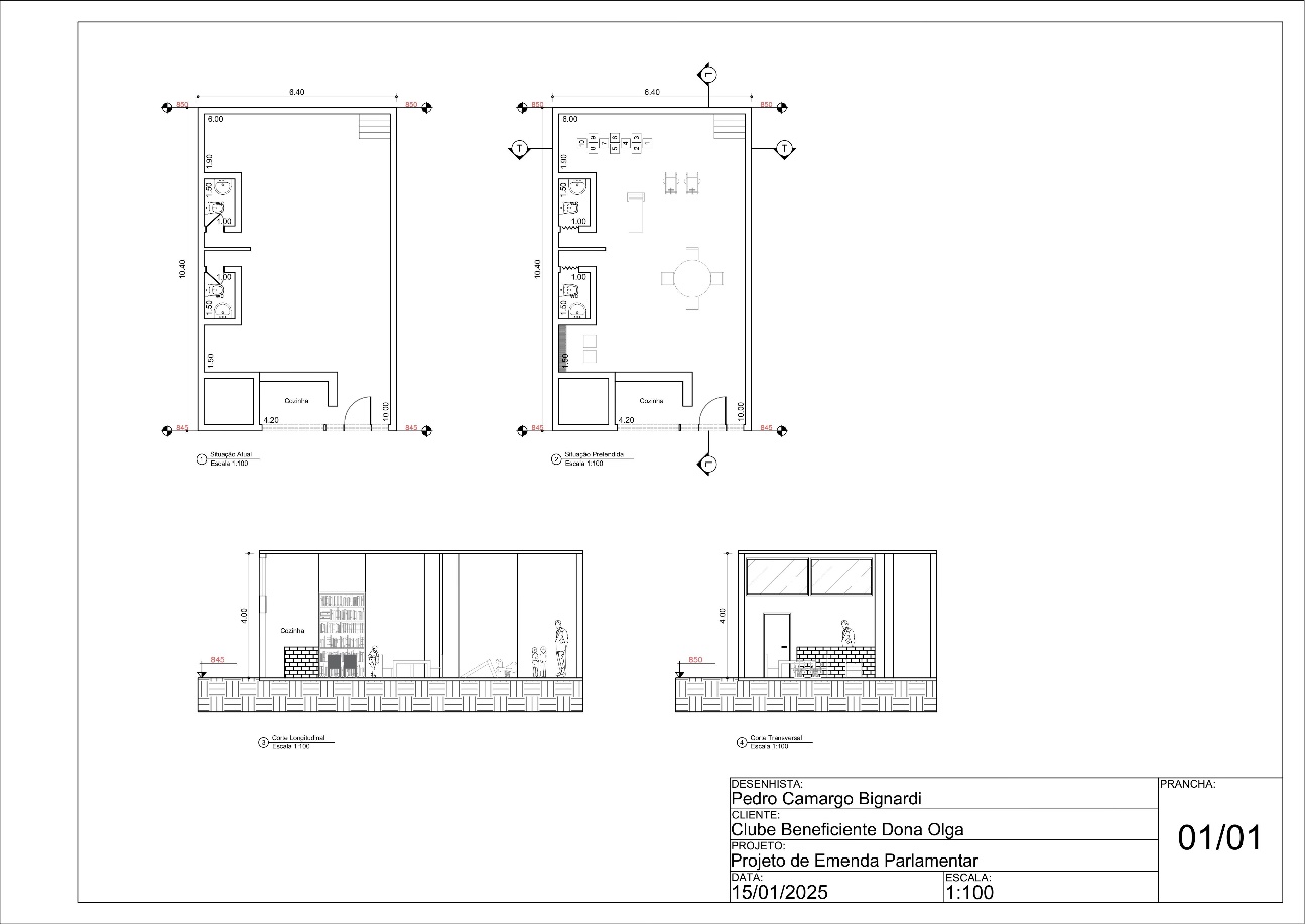
O projeto arquitetônico do Clube Beneficente Dona Olga
Um exemplo claro de como as emendas parlamentares podem ser usadas com eficiência é o projeto arquitetônico do Clube Beneficente Dona Olga, idealizado pelo técnico de edificações, Pedro Bignardi. O projeto visa atender às necessidades de uma comunidade, criando um espaço acessível e funcional para diversos tipos de atividades sociais e comunitárias, com a criação de uma brinquedoteca e a destinação dos bens públicos para aproximadamente 100 crianças carentes. O clube foi projetado para garantir a inclusão de jovens carentes com espaços adaptados para garantir o acesso a todos os membros da comunidade.

O design do clube também contempla áreas multifuncionais que podem ser utilizadas para diversas atividades, como brincadeiras, oficinas culturais e eventos recreativos. A estrutura conta com uma cozinha equipada, brinquedoteca, e outros espaços essenciais para promover o convívio social e a cidadania. O projeto foi desenvolvido de forma a integrar-se ao contexto local, levando em conta as condições específicas da região e otimizando os recursos disponíveis, garantindo um ambiente acessível e acolhedor para todos.
A contribuição das emendas parlamentares para a garantia dos Direitos Humanos
Quando direcionadas para projetos como o mencionado, as emendas parlamentares têm um papel crucial na promoção dos Direitos Humanos. Ao financiar a construção de espaços como esse, as emendas não apenas garantem infraestrutura de qualidade, mas também viabilizam programas sociais que atendem diretamente as necessidades da população em situação de vulnerabilidade social. Esses espaços podem ser usados para atividades educativas, culturais e recreativas, promovendo a inclusão e o desenvolvimento social dos cidadãos.
O local se torna um ponto de encontro para a comunidade, favorecendo a interação social e o fortalecimento dos laços comunitários. Além disso, ao oferecer um ambiente acessível e seguro, ele contribui para a melhoria da qualidade de vida da população, ajudando a reduzir as desigualdades e a promover a justiça social de crianças e adolescentes.
Transparência e participação comunitária no uso das emendas parlamentares
A transparência é fundamental para garantir que as emendas parlamentares sejam aplicadas corretamente e de forma eficiente. Isso significa que deve haver um acompanhamento rigoroso dos recursos destinados aos projetos e uma fiscalização contínua para evitar desvios. Além disso, a participação da comunidade no processo de decisão sobre onde e como os recursos serão utilizados é essencial para garantir que os projetos atendam às reais necessidades locais.
A inclusão da população nas discussões e decisões sobre o uso das emendas parlamentares assegura que os projetos sejam bem planejados e mais eficazes. A comunidade, que conhece as suas próprias necessidades, pode contribuir com ideias e sugestões que melhor atendam às demandas locais. Isso fortalece a democracia e aumenta a eficácia dos investimentos públicos, tornando-os mais alinhados com as expectativas da população.
Emendas parlamentares: A ponte entre as demandas populares e as soluções institucionais
As emendas parlamentares funcionam como uma ponte entre as necessidades da população e as soluções oferecidas pelas políticas públicas. Quando utilizadas de forma estratégica, essas emendas têm o potencial de transformar realidades, melhorando as condições de vida de comunidades marginalizadas ou em situação de vulnerabilidade. Projetos arquitetônicos como o mencionado exemplificam como recursos públicos podem ser direcionados para promover o desenvolvimento social e a inclusão, criando espaços que atendem às necessidades específicas das comunidades.
Esse tipo de financiamento é fundamental para a promoção do desenvolvimento humano e a criação de oportunidades para pessoas que, muitas vezes, não têm acesso a espaços adequados ou a serviços essenciais. Através da alocação estratégica de recursos, é possível transformar o ambiente urbano e melhorar a qualidade de vida da população, promovendo uma sociedade mais justa e igualitária.
O projeto arquitetônico como elemento de cidadania e inclusão social
Cada elemento do projeto foi pensado para atender às necessidades da população local, garantindo a acessibilidade e o conforto de todos os membros da comunidade, principalmente das crianças carentes. O clube, além de ser um local de convivência, também se torna um ponto de transformação social, promovendo o aprendizado, a educação e a interação entre os moradores.
A infraestrutura do clube oferece a base para atividades sociais, culturais e educativas que fortalecem a coesão social e incentivam a participação cidadã. Ao proporcionar um espaço seguro e inclusivo, o projeto contribui para a construção de uma comunidade mais solidária e igualitária, onde todos têm a oportunidade de se desenvolver e de participar ativamente da vida social.
A necessidade de aperfeiçoar o uso das emendas parlamentares
Para garantir que projetos possam continuar a gerar impacto positivo, é fundamental que o uso das emendas parlamentares seja constantemente aprimorado. Isso envolve não apenas melhorar a gestão dos recursos, mas também aumentar a participação popular nos processos de decisão e garantir que os recursos sejam alocados de maneira eficaz e transparente.
O trabalho conjunto permite que os projetos sejam mais bem planejados e executados, gerando resultados positivos e duradouros para a sociedade.
Emendas parlamentares como instrumento de transformação social
As emendas parlamentares são muito mais do que uma simples ferramenta política. Elas são um meio de promover os Direitos Humanos e a inclusão social, criando oportunidades para uma sociedade mais justa e igualitária. O projeto exemplifica como a alocação de recursos públicos, combinada com boas ideias e planejamento, pode transformar vidas e comunidades.
Ao investir em projetos como esse, não apenas se constroem espaços físicos, mas se criam bases para o desenvolvimento social, cultural e humano. O sucesso desses projetos depende da transparência, da participação ativa da comunidade e do compromisso com o bem-estar coletivo. As emendas parlamentares têm o poder de transformar realidades, e é por meio do uso responsável e eficaz desses recursos que podemos construir um futuro mais inclusivo e justo para todos.